Wrocław, Krzyki
oferta nr: IGM-LS-21259
Na sprzedaż w pełni funkcjonalne biuro zlokalizowane na Ołtaszynie -
jednej z najbardziej atrakcyjnych i spokojnych dzielnic.
Lokal idealnie nadaje się na działalność biurową, gabinety, kancelarie lub siedzibę firmy.
Biuro jest gotowe i nie wymaga dodatkowych nakładów finansowych.
Przemyślany układ pomieszczeń zapewnia komfort pracy oraz możliwości aranżacji według własnych potrzeb.
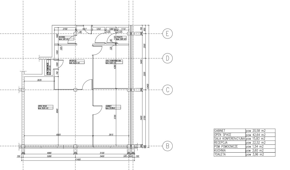
Obecny układ pomieszczeń:
* recepcja
* dwa gabinety
* przestrzeń typu open space
* pomieszczenie socjalne
* zaplecze sanitarne
Dodatkowym atutem jest możliwość zakupu dwóch miejsc postojowych w garaży podziemnym w łącznej kwocie 100 000 PLN.
Zapraszam na spotkanie
Anna Szkopek
514 706 683
opiekun oferty
Anna Szkopek
tel.: 717966600
tel. kom.:514706683
a.szkopek@iglica.pl
Szczegóły
LokalizacjaWrocław, Krzyki
Powierzchnia całkowita110,67 m2
Rodzaj budynkubiurowo-usługowy
Rodzaj lokaluJednopoziomowy
Przeznaczenie lokaluusługowy, handlowy, handlowo-usługowy, biurowy, biurowo - magazynowy
Piętro / liczba pięter1p / 5
Winda / liczba windtak / b.d.
Położenieruchliwa ulica
Usytuowaniejednostronne
Wejście do lokaluod ulicy
Teren ogrodzonynie
Liczba wejść1
Klimatyzacjatak
Cena
Cena //= $cena_label;?> 999.000 pln
Cena m2 9.027 pln
Garaż
Własny parkingjest
Cena brutto PLN50.000
Opłaty dodatkowe
Czynsz administracyjny PLN2.700
Opłaty w czynszuzaliczka na fundusz remontowy, wywóz śmieci, Winda, CO, administracja
ZAPRASZAMY DO WNĘTRZA
Galeria oferty







Zobacz więcej zdjęć
Plan lokalu