Wrocław, Stare Miasto
oferta nr: IGM-LS-20078
Ogłoszenie sprzedaży kamienicy w centrum Wrocławia
Przedmiotem sprzedaży jest kameralna kamienica zlokalizowana na Starym Mieście, w bezpośrednim sąsiedztwie Rynku. Budynek przeszedł generalny remont, co zapewnia wyjątkowo wysoki standard wykończenia. Nieruchomość aktualnie jest w pełni wynajmowana, co stanowi atrakcyjną propozycję inwestycyjną.
Dane ogólne:
- Powierzchnia całkowita: 654 m²
- Powierzchnia użytkowa: 458,9 m²
- Kubatura: 1980 m³
- Liczba kondygnacji: 7 + antresola
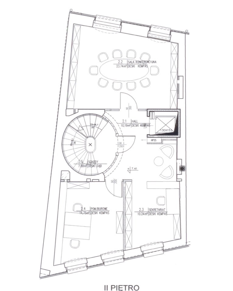
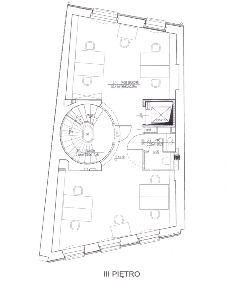
Szczegółowy opis nieruchomości:
- Kondygnacja -1: Powierzchnia 54,37 m²; funkcja socjalna (kuchnia, garderoba, 2 WC).
- Parter: Powierzchnia 62,6 m²; reprezentacyjna recepcja oraz sala konferencyjna.
- I-IV piętro: Lokale biurowe o powierzchni około 67 m² każdy.
- V piętro: Komfortowy apartament dwupoziomowy z tarasem i panoramicznymi oknami, oferujący piękny widok na panoramę miasta i rzekę. Meble w zabudowie na wymiar, wysoki standard wykończenia.
Możliwości adaptacyjne:
Budynek jest idealnym miejscem na modną siedzibę firmy - biura projektowego, firmy informatycznej, czy kancelarii prawnej lub usługi. Dzięki swojej lokalizacji i wyjątkowemu charakterowi, nieruchomość doskonale nadaje się również do przekształcenia na hostel. Luksusowy apartament na szczycie budynku stanowi dodatkowy atut, oferując przestrzeń mieszkalną o najwyższym standardzie.Przeznaczenie nieruchomości:
Nieruchomość objęta jest Miejscowym Planem Zagospodarowania Przestrzennego, z przeznaczeniem na zabudowę wielorodzinną oraz usługi centrotwórcze, co daje szerokie możliwości dalszego rozwoju i adaptacji.Kontakt:
IGLICA NIERUCHOMOŚCI Sp. z o.o.
Zaolziańska 1, 53-334 Wrocław
Marlena Joks
Tel: 71 7966600 / 690 210 963
Krzysztof Jabłoński (I speak english)
Tel: 71 79 666 00/ 514706680
Zapraszam do kontaktu oraz na prezentację tej wyjątkowej nieruchomości.

opiekun oferty
Marlena Joks
tel.: 71-7966600
tel. kom.:690210963
m.joks@iglica.pl
Nr licencji: 7915
Szczegóły
LokalizacjaWrocław, Stare Miasto
Powierzchnia całkowita654,00 m2
Winda / liczba windtak / 1
Wejście do lokaluod ulicy
Teren ogrodzonynie
Liczba wejść1
Klimatyzacjanie
Cena
Cena //= $cena_label;?> 10.800.000 pln
Cena m2 16.514 pln
Garaż
Naziemne miejsca parkingowe4
Własny parkingjest
Galeria oferty


Plan lokalu






